Réhabilitation et transformation d’une ferme classée en lieu de vie communautaire

  • Années: 2018 - 2021
  • Lieu: Attalens (CH)

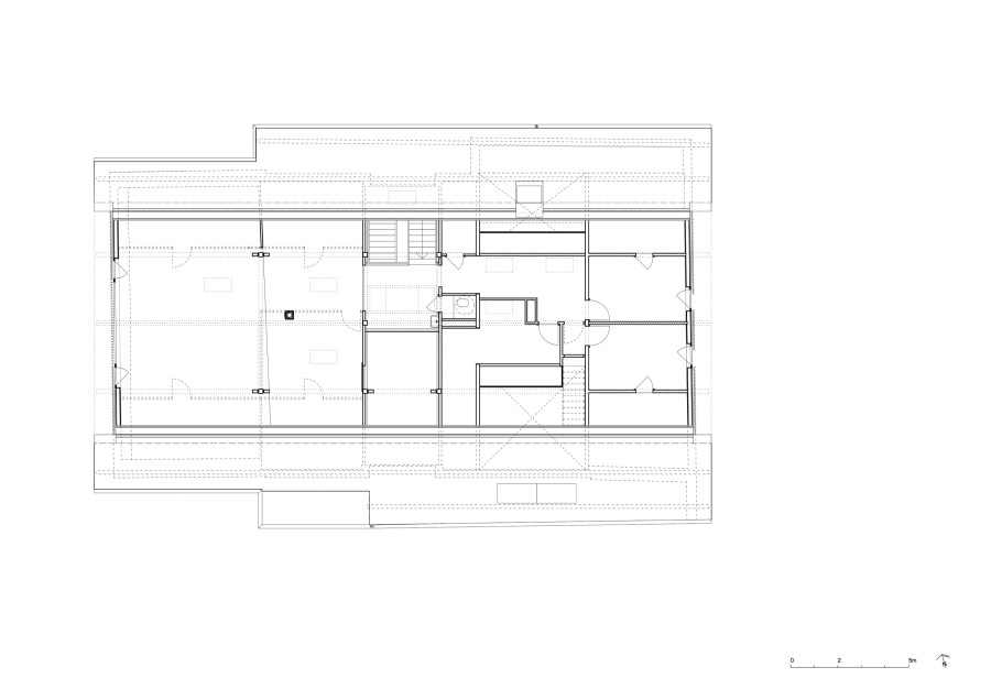
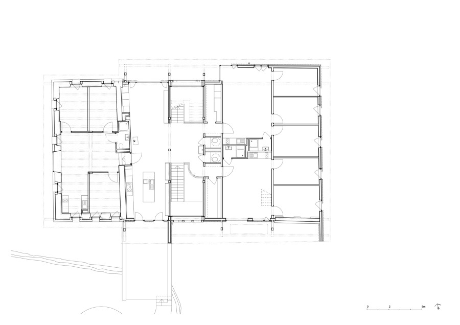
À Attalens, la ferme classée du Rombuet a été transformée en un lieu de vie résolument innovant alliant habitat collectif et sphère privée. Porté par la coopérative d'habitants « Les Coloriés », ce projet a été pensé comme une grande maison et propose six logements privés aux surfaces contenues, articulés autour d'espaces communs généreux : cuisine équipée, garde-manger, salle à manger, terrasse, atelier, bureau, salon, ainsi que des chambres mutualisées. L’intervention valorise l’existant : maçonnerie d’origine conservée et isolée, matériaux bruts, finitions sobres et nouvelle structure en bois fidèle à l’ancienne charpente. Le bardage ajouré en mélèze permet d'intégrer de larges ouvertures tout en préservant le caractère de la ferme. L’approche constructive est sobre, locale et durable : toilettes à lombricompost, citerne de récupération des eaux de pluie, biotope, potager et verger. Ce projet nous invite à repenser notre manière d'habiter : comment vivre à la campagne avec un impact réduit, en mutualisant les ressources tout en préservant l'intimité ?

Ici, le collectif est une réponse à la fois simple, pragmatique et respectueuse du cadre rural.

Projet développé en collaboration avec Veluzat Architectes

En collaboration avec Enerconseil (Phy. bât. + Ing. Acoustique) et NormalOffice (Ing. Civil)